Desarrollamos este plan dotando al 22@ de la infraestructura necesaria que requiere la nueva actividad de innovación tecnológica y residencial de esta área del Poblenou, mediante nuevos proyectos y obras de urbanización.
Ya está disponible la memoria anual, donde se recoge el trabajo de gestión y ejecución realizado por el Instituto Municipal de Urbanismo este último año.
El Instituto Municipal de Urbanismo, gestiona la ejecución de este programa que trasciende las consideraciones habituales de la rehabilitación integral.
El Instituto Municipal de Urbanismo impulsa el desarrollo urbanístico y la ejecución del nuevo Plan Especial de Infraestructuras.
Gestión Urbanística
+
Gestión Urbanística
Ejecutamos, a cuenta del Ayuntamiento, las tareas necesarias para la transformación urbanística de ámbitos que necesitan reformarse mediante las modalidades de cooperación o compensación y de expropiación.
Urbanización
+
Urbanización
Redacción de proyectos y ejecución de las obras de urbanización, que nos encargue el Ayuntamiento, para dotar al territorio de sistemas urbanísticos, es decir, espacios públicos, redes de servicios básicos, infraestructuras, vías y equipamientos.
Gestión de los Planes Especiales de Infraestructuras del 22@ y de la Marina del Prat Vermell.
Regeneración urbana
+
Regeneración
urbana
Coordinación de las nuevas iniciativas de rehabilitación, para los edificios y el espacio público. Una transformación real e integral, aplicando medidas que impidan la gentrificación.
Coordinación de proyectos
+
Coordinación de proyectos
Coordinación de Proyectos transversales en el territorio, asignados desde Ecología Urbana.
Coordinación de Fondos Europeos del Área de Ecología Urbana y Proyectos integrales de Barrios.
Desarrollamos este plan dotando al 22@ de la infraestructura necesaria que requiere la nueva actividad de innovación tecnológica y residencial de esta área del Poblenou, mediante nuevos proyectos y obras de urbanización.
Impulsamos, mediante la Oficina de la Marina, el desarrollo urbanístico, social y económico del ámbito de los barrios de la Marina y entornos, con una gestión integral y con criterios de sostenibilidad ambiental y calidad urbana.
Ponemos a disposición el suelo para incrementar el parque de viviendas sociales al sector y los nuevos espacios verdes, que contarán con la participación vecinal, impulsada por el Gobierno Municipal, para su desarrollo.
Gestionamos la ejecución de este programa integral para mejorar las condiciones de habitabilidad en los barrios más vulnerables y conseguir un desarrollo urbano más inteligente, socialmente inclusivo y sostenible.

Poniendo en valor la rehabilitación urbana del Besòs i el Maresme

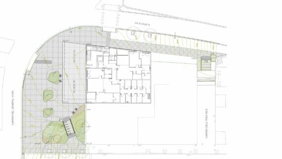
Mejorando una parte de la zona alta de la Via Augusta

Patrimonio histórico recuperado de la mano de un nuevo urbanismo

Un eje viario que da continuidad entre el Parc central del Poblenou y Selva de Mar