Una Via Augusta mejorada junto a General Vives e Isaac Albéniz

..
10/11/2025 - 15:12 h

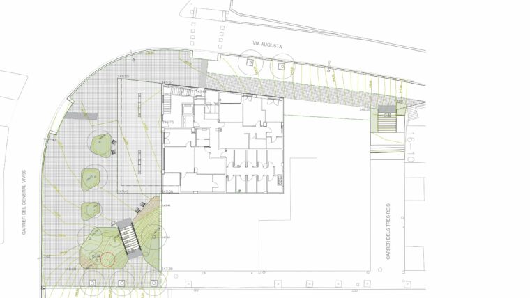
Las obras de esta urbanización (Fase 2 de las ‘Vores de la Via Augusta’) han mejorado el ámbito situado entre el lateral de esta vía (lado Llobregat), y a partir de la calle Tres Reis, continuando más arriba por la calle General Vives y hasta llegar a la calle Isaac Albéniz/Plaça de Borràs. En resumen, definiendo nuevas zonas verdes, de estancia, y  pavimentada accesible.

El IMU ya ha dado por finalizadas las obras de urbanización de un ámbito de la parte alta de la Via Augusta, en el distrito de Sarrià-Sant Gervasi. Se trata de una mejora de casi 600 m² de superficie que ha quedado repartida entre el lateral de esta vía (banda Llobregat), un tramo de General Vives y los primeros metros de la calle de Isaac Albéniz junto a la plaza de Borràs.

Estas obras son, de hecho, la segunda fase y continuación de los trabajos que el mismo Instituto Municipal de Urbanismo realizó a lo largo de la primavera de 2021 y que crearon, por un lado, el ajardinamiento de los espacios situados en la calle de Margenat/Via Augusta (acera montaña/banda Besòs) y Margenat/Via Augusta (acera montaña/banda Llobregat/ hasta la calle del Institut Químic de Sarriá), además de unas actuaciones a nivel de subsuelo.

La urbanización de la fase 2, que empezó el pasado mas de febrero, ha consistido, básicamente, en ampliar y pavimentar las aceras (de la banda Llobregat de la Via Augusta, y pasado Tres Reis) a causa de las nuevas alineaciones atrasadas de los edificios de viviendas que se están construyendo en aquel tramo; y la creación de unos parterres en la esquina de General Vives/Isaac Albéniz. También se ha construido una escala para salvar el desnivel existente junto a la futura edificación de viviendas.

Mobiliario urbano, jardinería y alumbrado

Se han implantado:

  • Bancos: sillas de madera ubicadas en pequeñas agrupaciones de dos unidades en los espacios principales de la intervención.
  • Papeleras de 70 l del modelo Barcelona.
  • Barandillas: barandillas de acero inoxidable en las escaleras.
  • Señalizaciones de Parques y Jardines.

Del ajardinamiento y el arbolado: se ha mantenido el arbolado existente–combinado con planta arbustiva- en las zonas de parterres. Y se ha plantado una combinación de arbustivas de diferente tipología que darán una variabilidad cromática y de textura (Salvia rosmarinus ‘Prostratus’, Salvia microphylla, Asparagus sprengeri, o Hedera helix).

En cuanto a la pavimentación, se ha utilizado pavimento para acera (piezas de baldosón del tipo 20x20x4).

Finalmente, en esta intervención, el alumbrado incorpora las mismas luminarias Led -4m de altura- de la anterior fase y además se ha hecho un refuerzo lumínico -en acera- de las luminarias existentes del ámbito.

Las obras de las ‘Vores de la Via Augusta’ empezaron el pasado mes de febrero y han tenido un coste de 152.748,96 euros. La ejecución ha ido a cargo del Instituto Municipal de Urbanisme (IMU).