L’Ajuntament urbanitza la plaça de Dolors Piera, al barri del Parc i la Llacuna del Poblenou, a tocar d’una nova promoció d’habitatge públic
16/07/2017 | Imprimeix
Temps estimat de lectura: 2 minuts
Es tracta d’un nou espai lliure que guanya el barri en un interior d’illa, i que incorpora un estany, zona verda, jocs infantils i pistes de petanca
La urbanització es coordina amb la construcció d’un edifici d’habitatge de promoció pública que impulsa el Patronat Municipal de l’Habitatge de Barcelona (PMHB)
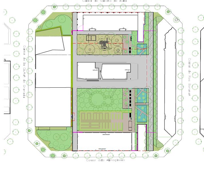
L’Ajuntament de Barcelona ha iniciat les obres d’urbanització d’un nou espai lliure i d’esbarjo que s’obrirà al barri del Parc i la Llacuna del Poblenou a tocar d’una nova promoció d’habitatge públic que també es promou al mateix indret. Es tracta de l’espai situat a l’interior de l’illa conformada pels carrers Ciutat de Granada, Sancho d’Àvila, Roc Boronat i dels Almogàvers, en una nova plaça pública que portarà el nom de Dolors Piera.
En aquest punt coincideixen en aquests moments tres obres que es fan de manera coordinada, perquè afecten a un mateix espai.

Està previst que les obres durin 24 mesos. I el pressupost del projecte és d’uns 5,3 milions d’euros.
Coincidint amb aquesta obra, s’inicia també l’actuació de Districlima per connectar el nou edifici amb la xarxa de fred i calor.
Finalment, també han començat les obres d’urbanització de l’interior d’illa, obres que donaran lloc a un nou espai lliure, verd i d’esbarjo per al barri.

La zona verda, a banda de respectar l’arbrat existent, inclou espècies arbustives de nova plantació, i un petit jardí d’arbres fruiters. La nova plaça també incorporarà un espai de pistes de petanca.
El paviment de l’espai combinarà les zones de sauló més toves amb àrees de pas de formigó polit i lloses de formigó.
La inversió prevista en aquest projecte és d’1.692.478 euros.



