Comencen les reformes a l’Escola Arc de Sant Martí del barri La Verneda i La Pau
01/11/2014 | Imprimeix
Temps estimat de lectura: 2 minuts
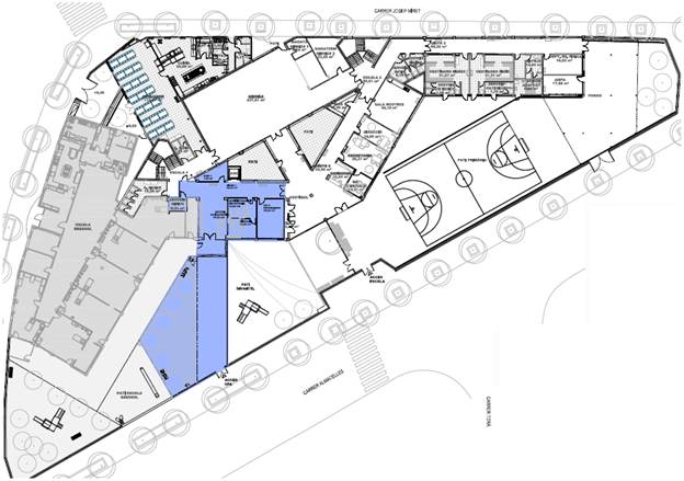
L’Escola Arc de Sant Martí (carrer Almacelles, 1-11) al barri de La Verneda i La Pau del districte de Sant Martí ha iniciat aquest mes les obres de rehabilitació de l’edifici per adaptar-lo a les actuals necessitats educatives del centre. La reforma preveu també la construcció d’un edifici annex al principal per a la ubicació de la cuina i menjador del centre i la sala de calderes.
Les obres han començat aquest octubre i tenen prevista la seva finalització el mes de desembre de 2015 i compten amb un pressupost de 1.813.022 € que aporta el Consorci d’Educació de Barcelona.
El regidor del districte de Sant Martí, Eduard Freixedes, ha declarat: “L’Escola Arc de Sant Martí és la més antiga del barri, construïda el 1970, i actualment no reunia les condicions adients per a desenvolupar la seva tasca educativa”. I ha afegit: “Amb aquesta reforma integral es dóna resposta a una actuació molt necessària per a la comunitat educativa i pels veïns que tindran un equipament al barri amb totes les garanties de seguretat”.

Els objectius principals del projecte consisteixen en la rehabilitació estructural de l’edifici per adaptar-lo a les necessitats actuals de l’Escola de manera que l’edificació respongui a uns paràmetres formals i arquitectònics que fan que l’edifici s’adapti millor a l’entorn.
La reforma també inclou la nova edificació d’un edifici annex al principal on s’ubicaran la nova cuina i menjador de l’escola i la sala de calderes.
L‘Escola s’estructura en una planta baixa i dues més. També es té en compte altres aspectes com el sistema constructiu utilitzat, l’eficiència energètica de l’edifici i el respecte pel medi ambient tant en el procés constructiu com en l’ús del propi edifici.
El projecte de reforma integral també contempla, amb un accés diferenciat de l’escola i de l’escola bressol existent, la distribució en planta baixa i planta primera, del CFA La Verneda. Aquest centre disposarà de 5 aules i pot tenir un claustre de fins a 8 docents. El centre ha de tenir capacitat per a uns 135 alumnes simultanis en doble o triple torn de matí, tarda i vespre.

