Barcelona projecta un nou veïnat amb habitatge protegit i equipaments a l’àmbit de Prim, a Sant Martí
04/05/2019 | Imprimeix
Temps estimat de lectura: 5 minuts
El plenari aprova una MPGM que preveu transformar 195.000 m2 a l’entorn de la Sagrera en un nou nucli veïnal amb un alt número de pisos de protecció i un pol d’equipaments públics per oferir tot tipus de serveis municipals
El centre del veïnat i principal espai de relació serà una nova plaça pública a l’entorn de la masia de Can Riera i la riera d’Horta, i al seu voltant s’hi construirà els edificis que acolliran els futurs habitatges i equipaments
Hi haurà 3.550 pisos en total, i més de la meitat seran assequible: uns 1.725 seran en règim de protecció oficial i hi haurà 200 habitatges dotacionals
Es preveuen fins a 9 equipaments públics nous: una escola infantil i primària, una escola bressol, un CAP, un centre de serveis socials, un centre de dia, una residència per a gent gran, un centre cívic i cultural, un pavelló poliesportiu i una biblioteca, i també s’omplirà d’usos la masia de Can Riera
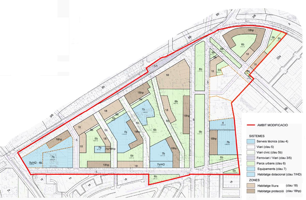
Barcelona impulsa un nou veïnat amb un pol d’habitatge públic i equipaments a l’àmbit de Prim, al districte de Sant Martí. S’ubica al costat de la gran àrea de transformació de la Sagrera, i connecta amb l’entorn industrial de la Verneda i del Torrent d’Estadella. En concret, és tota la zona delimitada per la ronda de Sant Martí, el Pont del Treball Digne, els carrers de Santander i de Cantàbria, la rambla de Prim, la Via Trajana i el carrer de Jaume Brossa.

Recreació del futur nucli veïnal de l’àmbit de Prim.
Ara, el Govern municipal ha impulsat una reordenació urbanística de l’àmbit de Prim que es recull en una Modificació de Pla General Metropolità aprovada al Plenari del Consell Municipal d’ahir divendres, amb els vots a favor del Govern municipal, GMDemòcrata, Cs, ERC, PP i els regidors no adscrits, Gerard Ardanuy i Juan Josep Puigcorbé, i l’abstenció del PSC. Així, el pla ja ha superat l’últim tràmit municipal abans d’elevar-se a la Subcomissió d’Urbanisme de Barcelona per a l’aprovació definitiva.
El nou planejament té per objectius generar un nou nucli veïnal que inclogui un alt número d’habitatges protegits i, alhora, un pol d’equipaments públics potent i complet per oferir tot tipus de serveis municipals. A més, posa en valor els elements patrimonials i de memòria històrica ja presents a la zona, com la masia de Can Riera, que esdevindrà el centre del futur veïnat, i la riera d’Horta, i crea zones verdes. Tot plegat, per revitalitzar la zona, omplir-la de vida i relligar els districtes de Sant Andreu i Sant Martí.

Ubicació de l’àmbit de Prim, a Sant Martí.
Un pla participat per a una nova centralitat veïnal
L’Ajuntament ha treballat des de fa mesos en el projecte. Al juliol de 2017, es va convocar un concurs públic d’idees per a l’encaix urbanístic del planejament. La proposta guanyadora va ser la de Sínia-Tokio, de Forgas Arquitectes, que feia una bona integració de la riera i de la masia i hi preveia un espai públic de gran qualitat envoltat de diversos equipaments. A més, s’ha dut a terme un procés participatiu per incorporar el màxim de veus en l’elaboració del projecte i recollir els suggeriments de la ciutadania de cara a la tramitació que ha culminat ara.
El pla urbanístic planteja una nova plaça pública a l’entorn de la masia de Can Riera i la riera d’Horta, que esdevenen el nou centre del veïnat i espai de relació. Al voltant de la plaça s’hi construirà un conjunt d’edificis que acolliran els futurs habitatges i equipaments i concentraran tots els usos de l’àmbit. Els edificis més alts se situaran al perímetre del Sector per crear una zona interior molt més domèstica i amable que generi ambient de barri.

Recreació de la plaça pública al centre del veïnat i les futures edificacions que l’envoltaran.
Gran protagonisme de l’habitatge protegit
El futur àmbit de Prim comptarà amb una gran dotació d’habitatge, i un alt percentatge serà de protecció. El sostre total d’habitatge serà de 282.969 m2, que equival a uns 3.550 pisos entre els de règim lliure, els protegits i els dotacionals.
D’aquests, més de la meitat –el 54%– seran de protecció o dotacionals. En concret, hi haurà uns 137.845 m2 de sostre que donaran lloc a uns 1.725 pisos en règim d’habitatge de protecció oficial (HPO) per garantir el dret de l’accés a l’habitatge. També es reserven 15.000 m2 per a uns 200 habitatges dotacionals, que es destinen a satisfer les necessitats temporals de col•lectius específics com ara els joves o la gent gran. I per a habitatges de règim lliure hi haurà 130.124 m2 que permetran construir 1.625 pisos.
Així doncs, la proporció canvia notablement respecte el planejament actual, ja que fins ara es preveia que hi hagués un 70% de sostre reservat per a habitatge lliure i només un 30% per a protegit.
Tot tipus d’equipaments educatius, sanitaris i socials i predomini de l’espai públic
El pol d’equipaments de l’àmbit de Prim comptarà amb una superfície total de 21.656 m2, que representa un creixement de 15.000 m2 respecte al planejament vigent i que podrà donar lloc a fins a 9 equipaments públics nous. La posició d’aquests centres i els espais lliures que hi haurà al seu voltant permetrà donar una cobertura total a la necessitat dels veïns i veïnes de l’entorn i dels barris del voltant, com són la Verneda i la Pau i Sant Martí de Provençals.
Durant el procés participatiu ja s’ha treballat i acordat que hi haurà una escola d’educació infantil i primària de dues línies, una escola bressol, un centre d’atenció primària, un centre de serveis socials, un centre de dia i una residència per a gent gran.
A més, el sòl disponible també permet implantar un centre cívic i cultural, un pavelló poliesportiu i una biblioteca. Aquests usos, així com els que donaran contingut a la masia de Can Riera, es consensuaran amb el veïnat.
L’actual IES Salvador Seguí es mantindrà, i tindrà accés a la nova plaça central del veïnat a través d’un espai públic continu i paral•lel al carrer de Santander que tindrà una amplada mínima de 25 metres. També es connectarà als espais lliures que es generaran entre els edificis residencials.
Pel que fa a zones verdes, la superfície total serà de 55.952 m2, un 28,62% de tota la zona. Sumades a la superfície de vials –65.224 m2–, la d’equipaments i la d’habitatge dotacional, l’espai públic que hi haurà en tot el Sector Prim serà de gairebé el 75%.

Quadre total de superfícies previstes en el nou planejament.

Distribució dels usos previstos en l’MPGM.
Imatges



