Ajuntament i Generalitat aproven un conveni per explorar la construcció d’un centre de dades al subsòl de La Sagrera
25/04/2024 | Imprimeix
Temps estimat de lectura: 3 minuts
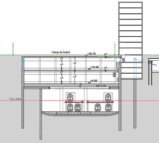
- El conveni identifica el macropou de les obres de La Sagrera com un lloc ideal per ubicar-hi un Centre de Processament de Dades de fins a 10.600 metres quadrats
- Les dues administracions públiques es donen un termini de 12 mesos per estudiar de manera conjunta què caldria per tirar endavant aquest projecte estratègic
L’Ajuntament de Barcelona i la Generalitat de Catalunya han aprovat un conveni marc de col·laboració que té per objectiu explorar la possibilitat que es construeixi un centre de dades al subsòl de La Sagrera, concretament a la zona del macropou d’atac per a les obres al voltant de les línies L9 i L10 del metro. En concret, la Comissió de Govern de l’Ajuntament de Barcelona ha aprovat aquest conveni que té per objectiu “impulsar, en l’àmbit de les respectives competències i de manera conjunta, els estudis, treballs i actuacions administratives destinades a establir les condicions necessàries per ubicar un centre de processament de dades (CPD) al subsòl de l’equipament municipal a Camp del Ferro 2”.
El projecte es veu com una oportunitat i a la vegada com una aposta en un sector estratègic pels diferents avantatges competitius detectats. D’entrada, la infraestructura que albergaria el CPD ja està construïda i, per tant, això abarateix els costos de manera significativa. A més a més, la Xarxa Districlima que hi ha a la zona aportaria el valor afegit necessari per fer una gestió eficient de l’energia, atès que aquest tipus d’instal·lacions fa un consum elevat. Les galeries de serveis que ja hi ha a la zona o bé la proximitat de la subestació elèctrica de La Sagrera simplificarien igualment la gestió de la instal·lació. Per últim, el CPD podria jugar un paper rellevant en el projecte d’aterratge a la zona del Besòs d’un cable submarí de telecomunicacions provinent de l’est del Mediterrani.
Els estudis preliminars que s’han fet sobre aquest CPD, que seria un dels més grans que hi ha a la ciutat de Barcelona i al conjunt de Catalunya, apunta que podria tenir una dimensió d’uns 10.600 metres quadrats dividit en dues plantes i una potencia d’entre 12 i 15 megawatts (MW). Al voltant d’un 20% d’aquestes instal·lacions es reservarien per a les mateixes administracions públiques, a raó d’aproximadament un 2% per l’Ajuntament de Barcelona i el 18% restant per a la Generalitat de Catalunya. A més a més, com que s’ubicaria al subsòl en una zona que ja està construïda, la seva ubicació seria totalment compatible amb altres usos del sòl que ja hi ha previstos, com per exemple el camp de futbol que s’ubicarà a la superfície.
En tot aquest context cal tenir en compte l’estratègia Cloud Europea, i és que la mateixa Comissió Europea té com a objectiu que les empreses i les autoritats públiques tinguin accés a infraestructures i serveis al núvol segurs, sostenibles i interoperables. Per fer-ho possible es preveu el desplegament de milers de nodes d’aquest tipus al continent, que siguin climàticament neutres i altament segurs, però també que permetin fer transferències ràpides de dades. Bona part d’aquesta arquitectura tecnològica passarà per la posada en marxa de CPD d’aquest tipus. De fet, només en el cas d’Europa, s’espera un creixement d’aquest mercat d’un 20% anual.
La posada en marxa del nou CPD al macropou de La Sagrera permetria, en última instància, millorar la competitivitat privada i pública de qui decidís ubicar-se en aquest entorn gràcies a la millora de la latència, és a dir el temps exacte que triga un conjunt de dades a ser transmès a la xarxa. En paral·lel, la seva instal·lació no suposaria cap retard en les obres ni els terminis de les diferents infraestructures i equipaments que s’han d’ubicar a la zona. Per fer-ho realitat, Ajuntament de Barcelona i Generalitat de Catalunya s’han donat 12 mesos a partir d’ara per fer les preceptives anàlisis, ja siguin jurídiques, tècniques, de consultes amb el sector o de règim d’explotació de la infraestructura, entre d’altres.





