Trinitat Vella comptarà amb un nou Casal per a la Gent Gran
26/12/2017 | Imprimeix
Temps estimat de lectura: 2 minuts
El consistori ha adquirit tres locals que conformaran el futur equipament, a la carretera de Ribes, a una zona cèntrica del barri tal i com demanava el veïnat
L’espai suposa una inversió de 516.000€, compta amb una superfície de 431m2 i forma part del Pla de Barris de Trinitat Vella
Es destinarà al foment d’hàbits saludables i de benestar social, al lleure, a la formació permanent i, especialment, a facilitar les condicions òptimes per a la vida comunitària i la relació entre les persones grans
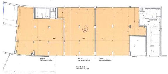
El barri de Trinitat Vella, al Districte de Sant Andreu, comptarà amb un nou Casal municipal per a la Gent Gran al número 85-97 de la carretera de Ribes. L’Ajuntament ha formalitzat aquesta setmana la compra de tres locals per un valor de 516.000€.
El nou equipament és una de les mesures contemplades al Pla de Barris de Trinitat Vella, i sorgeix de les demandes que el veïnat del barri va fer arribar al consistori durant els debats del Pla d’Actuació de Districte (PAD) que es va portar a terme al llarg de l’any 2015 i que va formar part del Pla d’Actuació Municipal (PAM).
En total, els locals adquirits pel consistori tenen una superfície de 431m2, tots tres amb façana a la carretera de Ribes, urbanitzada recentment i que, tal i com demanaven els veïns , està situada en una zona cèntrica del barri de Trinitat Vella. El futur Casal de la Gent Gran incorporarà un punt d’informació, una sala polivalent per activitat física i actes comunitaris, tallers, una sala informàtica, espai de jocs, una sala de reunions, serveis adaptats, un bar-cafeteria, un office per organitzar servei d’àpats en companyia, i un despatx de gestió de l’equipament.

Amb aquest nou casal es completa al Programa d’Equipaments de Trinitat Vella a què l’ajuntament es va comprometre i que també contempla els diferents equipaments municipals previstos al conjunt de Porta Trinitat i aquells que s’ubicaran al que actualment són els entorns de la presó.
El Pla de Barris de Trinitat Vella té un pressupost assignat de 6,07 milions d’euros desglossats en els quatre àmbits d’actuació: drets socials (1,64 milions), educació (1,1 milions), activitat econòmica (690.000 euros) i ecologia urbana (2,64 milions). Cadascuna d’aquestes àrees es subdivideix en diferents blocs d’actuació. Així, drets socials inclou la millora de la qualitat de vida de la gent gran, la promoció de la cultura i la inclusió de la diversitat a través de projectes comunitaris, la promoció artística i d’oci saludable i la millora de les condicions de vida dels habitatges.

