Ciutat Vella tindrà un equipament pioner que conjuga un casal de gent gran amb allotjaments amb serveis col·lectius
28/07/2021 | Imprimeix
Temps estimat de lectura: 2 minuts
Estarà situat al carrer Mestres Casals i Martorell, al barri de Sant Pere, Santa Caterina i La Ribera
El districte de Ciutat Vella ha iniciat les obres d’un nou equipament, pioner a Barcelona, que combinarà un casal de gent gran i allotjaments amb serveis col·lectius en un mateix edifici. L’equipament estarà situat al carrer Mestres Casals i Martorell, 2-16, al barri de Sant Pere, Santa Caterina i La Ribera i la seva construcció compta amb un pressupost de 3,2 milions d’euros.
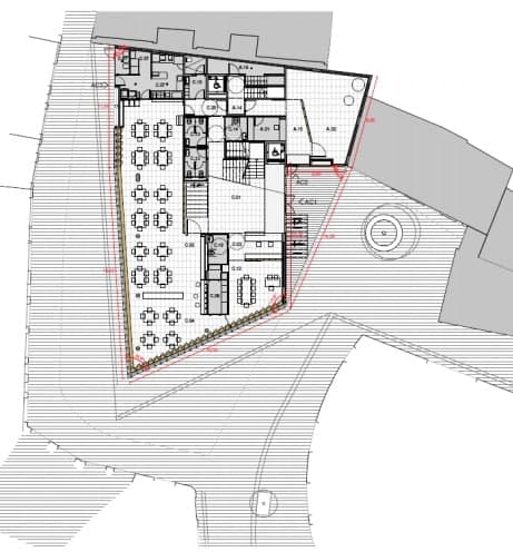
En total, la superfície construïda de l’edificació serà d’uns 1.500 m2 aproximadament. Els dos equipaments, amb una superfície similar, podran compartir espais com són el menjador amb servei d’àpats amb companyia i bugaderia, i alhora hauran de poder funcionar independentment, amb dos accessos diferenciats.
Aquest equipament híbrid constarà de planta baixa i tres plantes. Als baixos i primer s’hi ubicarà el casal de gent gran. Les plantes segona, tercera i quarta es destinaran a allotjament. La combinació d’ambdós usos, pionera a Barcelona, permetrà que els usuaris d’un equipament i de l’altre puguin compartir espais.

El regidor de Ciutat Vella, Jordi Rabassa, ha explicat que “el veïnat fa anys que reivindica un nou casal de gent gran en aquest entorn, ja que l’actual està molt limitat d’espai, i amb aquesta actuació resolem la històrica demanda” i ha afegit que “a més, estem parlant d’un equipament innovador i pioner per la seva doble funcionalitat. D’una banda, és un nou casal de gent gran i, de l’altra, allotjaments per a persones en risc d’exclusió social. A més, comptarà amb una terrassa d’ús comunitari i lavabos públics”.
Per al projecte, els equips redactors van definir la volumetria del nou equipament, la distribució dels espais per poder acollir tots els usos previstos i també la proposta dels espais exteriors en relació amb l’edifici i amb el seu entorn més immediat, ja que el projecte inclou la urbanització d’uns 270 m2 dels entorns. Es preveu que l’obra tingui una durada aproximada d’entre 12 i 15 mesos.



