Una Via Augusta millorada a tocar de General Vives i Isaac Albéniz

Millorant una part de la zona alta de la Via Augusta

..
10/11/2025 - 15:12 h

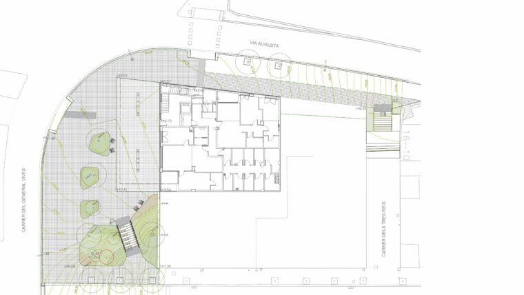
Les obres d’aquesta urbanització (Fase 2 de les Vores de la Via Augusta) han arranjat l’àmbit situat entre el lateral d’aquesta via (banda Llobregat), i a partir del carrer dels Tres Reis, continuant més amunt pel carrer del General Vives i fins a arribar al carrer d’Isaac Albéniz/Plaça de Borràs. Tot plegat, definint noves zones verdes, d’estada, i  pavimentada accessible.

L’IMU ja ha donat per acabades les obres d’urbanització d’un àmbit de la part alta de la Via Augusta, al districte de Sarrià-Sant Gervasi. Es tracta d’una millora de gairebé 600 m² de superfície que ha quedat repartida entre el lateral d’aquesta via (banda Llobregat), un tram de General Vives i els  primers metres del carrer d’Isaac Albéniz a tocar de la plaça de Borràs.

Aquestes obres són, de fet, la segona fase i continuació dels treballs que el mateix Institut Municipal d’Urbanisme va realitzar al llarg de la primavera de 2021 i que van crear, d’una banda, l’enjardinament dels espais situats al carrer de Margenat/Via Augusta (vorera muntanya/banda Besòs) i Margenat/Via Augusta (vorera muntanya/banda Llobregat/ fins al carrer de l’Institut Químic de Sarrià), a més d’unes actuacions a escala de subsòl.

La urbanització de la fase 2, que va començar el passat mes de febrer, ha consistit, bàsicament, a ampliar i pavimentar les voreres (de la banda Llobregat de la Via Augusta, i passat Tres Reis) a causa de les noves alineacions enretirades dels edificis d’habitatges que s’estan construint en aquell tram; i la creació d’uns parterres a la cantonada de General Vives/Isaac Albéniz. També s’ha construït una escala per a salvar el desnivell existent al costat de la futura edificació d’habitatges.

Mobiliari urbà, jardineria i enllumenat

S’han implantat:

  • Bancs: cadires de fusta ubicades en petites agrupacions de dues unitats en els espais principals de la intervenció.
  • Papereres de 70 L del model Barcelona.
  • Baranes: baranes d’acer inoxidable a les escales.
  • Senyalitzacions de Parcs i Jardins.

De l’enjardinament i l’arbrat: s’ha mantingut l’arbrat existent–combinat amb planta arbustiva- en les zones de parterres.   I s’ha plantat una combinació d’arbustives de diferent tipologia que donaran una variabilitat cromàtica i de textura (Salvia rosmarinus ‘Prostratus’, Salvia microphylla, Asparagus sprengeri,  o Hedera helix).

Pel que fa a la pavimentació, s’ha utilitzat paviment per a vorera (peces de panot del tipus 20x20x4).

Finalment, en aquesta intervenció, l’enllumenat incorpora les mateixes lluminàries Led -4m d’alçada- de l’anterior fase i a més  s’ha fet un reforç lumínic -en vorera- de les lluminàries existents de l’àmbit.

Les obres de les ‘Vores de la Via Augusta’ van començar el passat mes de febrer i han tingut un cost de 152.748,96 euros. L’execució ha anat a càrrec de l’Institut Municipal d’Urbanisme (IMU).